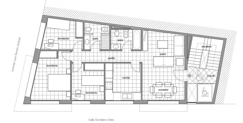
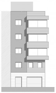
El equipo de FERMUR arquitectura, recibio el encargo de realizar una propuesta para la rehabilitación de un edificio en Aldaia. Se trata de un edificio de cuatro alturas y bajo comercial, actualmente se encuentra deshabitado y en un grado de deterioro evidente. Después de visitar el inmueble, para comprobar el estado en el que se encuentra y analizar el grado de intervención necesario, se realizan varias propuestas para su rehabilitación. La propuesta principal fué hacer una vivienda por planta, dejando todo el bajo como un único local comercial. Se propuso modificar las fachadas para darle al edificio un aire moderno, aprovechando al máximo la iluminación natural, ya que las viviendas cuentan con iluminación natural en todas las estancias, a excepción de las baños. En la zona común se propuso la instalación de un ascensor especial para rehabilitación, obligando a intervenir en la estructura del edificio. 
Rehabilitación edificio arquitecto en Aldaia.

Solicita presupuesto sin compromiso de tu arquitecto en Aldaia