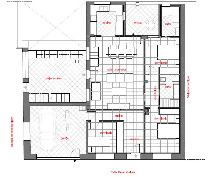
Se trata de una vivienda situada en el centro de Paterna, en una ubicación de protección especial por la zona de cuevas existentes de especial interes para la población. El propietario de la vivienda queda con nuestro arquitecto en paterna, para realizar un estudio insitu del estado actual del edificio, que actualmente se encuentra deshabitado. La vivienda se desarrolla en única planta, con un pequeño sótano. El principal problema que observamos en la vivienda fueron problemas estructurales debido a filtraciones de agua desde la cubierta, lo cual era el principal punto de partida para la reforma de la vivienda. En segundo lugar, se nos encargó una reforma integral de la vivienda, dotandola de un garaje para dos vehículos.

Uno de los refuerzos que se hizo para mejorar la estructura existente en la zona del garaje, fué la colocación de vigas metálicas por la parte inferior del forjado, teniendo que elevar los pilares metálicos existentes, además de realizar tres pilares metálicos nuevos para la ampliación de la estructura actual.
Arquitecto en paterna.

Solicita presupuesto sin compromiso, de arquitecto en paterna